Používame cookies

Súbory cookie a ďalšie technológie sledovania používame na zlepšenie vášho zážitku z prehliadania našich webových stránok, na to, aby sme vám zobrazovali prispôsobený obsah a cielené reklamy, na analýzu návštevnosti našich webových stránok a na pochopenie toho, odkiaľ naši návštevníci prichádzajú. Viac info

 

Nájom ambulancia West –650€/m vrátane energií a parkoviska

Ulica: Úzka
Obec: Galanta
Okres: Galanta
Kraj: Trnavský kraj
Druh: Objekty
Typ: Prenájom
Typ objektu: Obchodné priestory
Iné:
650 €/mesiac

Popis nehnuteľnosti

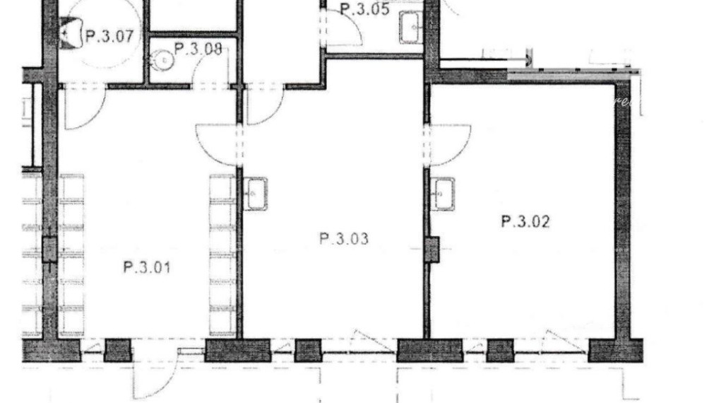
Na prenájom: priestor bývalej ambulancie – 650 € mesačne (vrátane energií)

Priestor sa nachádza na prízemí bytového domu na sídlisku West.
O výmere: 74.8m2
Pozostáva z:

- 2x klimatizovaných miestností,
- 1 čakárne,
- samostatnej bezbariérovej toalety pre hostí,
- výlevky,
- miestnosti využiteľnej ako šatňa alebo prezliekareň,
- miestnosti so sprchou a druhým WC.
- chodba

1.parkovacie miesto 

Na oknách sú žalúzie, podlahy sú riešené dlažbou. Orientácia na juh -tichá strana s výhľadom na zeleň. K priestoru neprislúcha vlastné parkovacie miesto, avšak je možné parkovať na miestach pre hostí alebo si prenajať vlastné.

Podmienky pri nástupe:

rezervačný poplatok v hotovosti: 650 €,
depozit: 650 €,
prvé nájomné: 650 € (uhrádza sa prevodom na účet spolu s depozitom).

Cena spolu pri podpise zmluvy: 1950 €.

Mesačné nájomné je 650 € vrátane energií.

pre viac informácií ma môžete kontaktovať telefonicky 0918685901 alebo e-mailom bartikova@salea.sk

Vlastnosti

Status:
aktívne
Vlastníctvo:
firemné
Stav:
novostavba
Celková plocha:
75 m2
Úžitková plocha:
74.8 m2
Zateplený objekt:
áno
Kúpeľňa:
áno
Počet podlaží:
1
Počet izieb:
4
Balkón:
nie
Kúpeľňa:
áno
Klimatizácia:
áno
El. napätie:
230V
Parkovanie:
verejné
Kanalizácia:
áno
Zateplený objekt:
nie
Terasa:
nie
Vykurovanie:
spoločné
Status:
aktívne
Vlastníctvo:
firemné
Stav:
novostavba
Celková plocha:
75 m2
Úžitková plocha:
74.8 m2
Zateplený objekt:
áno
Kúpeľňa:
áno
Počet podlaží:
1
Počet izieb:
4
Balkón:
nie
Kúpeľňa:
áno
Klimatizácia:
áno
El. napätie:
230V
Parkovanie:
verejné
Kanalizácia:
áno
Zateplený objekt:
nie
Terasa:
nie
Vykurovanie:
spoločné

Pozrieť na mape

Radi Vám poradíme

Podobné nehnuteľnosti