Používame cookies

Súbory cookie a ďalšie technológie sledovania používame na zlepšenie vášho zážitku z prehliadania našich webových stránok, na to, aby sme vám zobrazovali prispôsobený obsah a cielené reklamy, na analýzu návštevnosti našich webových stránok a na pochopenie toho, odkiaľ naši návštevníci prichádzajú. Viac info

 

APARTMÁNOVÝ DOM - 4 APARTMÁNY + WELLNESS - TERCHOVÁ

Ulica: Vrátňanská cesta
Obec: Terchová
Okres: Žilina
Kraj: Žilinský kraj
Druh: Objekty
Typ: Predaj
Typ objektu: Apartmánový dom
799 000 €
Oslobodená od DPH.

Popis nehnuteľnosti

Vyhľadávaný apartmánový dom v Terchovej na predaj – investícia alebo spoločné rodinné bývanie.

Mám pre vás jedinečnú príležitosť stať sa majiteľmi krásneho apartmánového domu v srdci obce Terchová, iba 4 minúty autom od lyžiarskeho strediska Vrátna-Paseky. Táto lokalita je vyhľadávaná turistami nielen v zimnej sezóne, ale aj počas celého roka vďaka množstvu možností na turistiku, cykloturistiku a oddych.

Apartmánový dom MUCHA APARTMENTS je ideálnym východiskovým bodom na objavovanie krás Národného parku Malá Fatra ako sú Horné Diery a Dolné Diery a z vrcholov Malý Rozsutec, Veľký Rozsutec a Veľký Fatranský Kriváň.

Ideálne pre investorov: Apartmánový dom obsahuje štyri plne zariadené 2-izbové apartmány, ktoré sú momentálne prenajímané cez platformu booking.com. Ročný čistý výnos je 60.000 € – to znamená stabilný výnos vo výške 7,50% p.a.. Dom prešiel kompletnou rekonštrukciou v rokoch 2013 – 2015, takže je pripravený pokračovať v prenájme bez ďalších investícií. Prízemie tvorí recepcia, wellness, lyžiareň, detský kútik a priestranná jedáleň s kuchyňou a krbom.

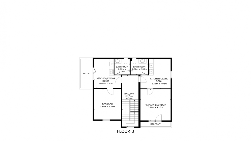
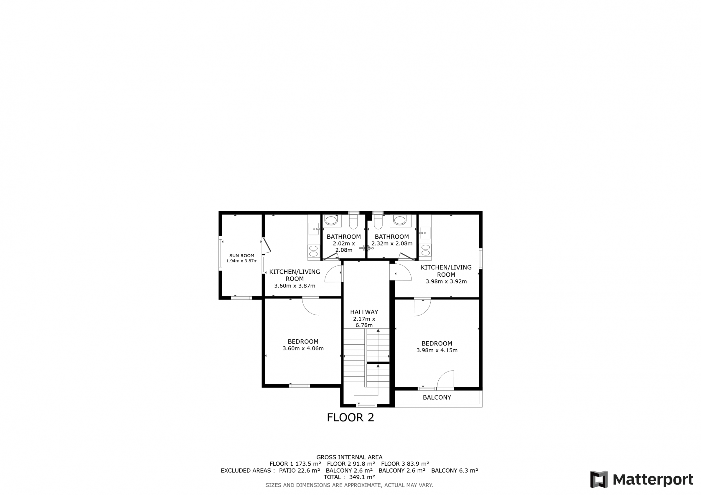
Možnosť pre 4 rodiny: Hľadáte miesto, kde by ste mohli tráviť čas s priateľmi alebo rodinou? Tento apartmánový dom je perfektným riešením pre štyri rodiny, ktoré si chcú spoločne užívať komfort a súkromie vlastného apartmánu a zároveň mať prístup k spoločnému wellness, záhrade, terase a krásnej prírode. Každá rodina môže mať vlastný 2-izbový apartmán s balkónom (výmera 36 m² + balkón), kde si užije súkromie a zároveň má k dispozícii spoločné priestory pre spoločné chvíle.

Wellness pre oddych a regeneráciu: Wellness o výmere 55 m² zahŕňa oddychovú miestnosť, infra saunu, fínsku saunu, jacuzzi, sprchy a WC – všetko pre váš komfort po lyžovačke či turistike. Prízemie takisto obsahuje krytú terasu a priestrannú záhradu s krásnym výhľadom na okolitú prírodu.

Výhody tohto apartmánového domu:
- Lokalita: Vyhľadávané lyžiarske a turistické stredisko Terchová, len 4 minúty od Vrátna-Paseky.
- Štyri samostatné apartmány, každý s balkónom.
- Wellness – ideálne pre regeneráciu po dni strávenom na svahu.
- Jedáleň s plne vybavenou kuchyňou a spoločenskou miestnosťou s krbom.
- Parkovanie na pozemku o výmere 1233 m² (vrátane upraveného parkoviska s kapacitou pre viacero áut).

Čo môžete očakávať:
- Výnos pre investorov: 60 000 € ročne, s možnosťou zvyšovania obsadenosti.
- Ideálne miesto na oddych pre rodiny – spoločný wellness, terasa, záhrada a priestranné apartmány.

Nechajte sa očariť krásou obce Terchová a skvelými možnosťami, ktoré tento apartmánový dom ponúka.

Technicky:
- Zastavaná plocha: 300m2
- Podlahová plocha: 350m2 + terasa + balkóny
- 4 x samostatný plne vybavený a klimatizovaný apartmán (2 x 33m2 + terasa a 2 x 36m2 + balkón)
- Wellness o výmere 55m2 - oddychová miestnosť, infrasauna, fínska sauna, jacuzzi, sprchy, WC
- Krytá terasa o výmere 40m2
- Apartmánový dom prešiel kompletnou rekonštrukciou v rokoch 2013 - 2016
- Plne v prevádzke s čistým ročným výnosom 60.000 Eur - stabilný výnos 7,50% p.a.
- Hodnotenie na platforme booking.com - Skutočne výnimočné = 9,5
- Link na pre zobrazenie MUCHA APARTMENTS na booking.com: booking.com/Share-QTX7CL
- Link zobrazenie web stránky MUCHA APARTMENTS: mucha-apartments.sk/sk/
- Apartmánový dom sa predáva kompletne zariadený
- Veľkosť pozemku: 2176 m2 z toho
- 943 m2 tvorí pozemok s apartmánovým domom, wellness a záhradou na jednej strane cesty
- 1233 m2 tvorí pozemok na opačnej strane cesty oproti apartmánovému domu a z tohoto pozemku pripadá cca. 300m2 na upravené parkovisko
- Vykurovanie: podlahové teplovodné, zabezpečené plynovým kondenzačným kotlom
- Ohrev vody: plynový kondenzačný kotol + zásobník na teplú vodu o objeme 750 litrov
- Voda: verejný vodovod
- Kanalizácia: áno, verejná
- Elektrika: áno, 230 / 400 V
- Počet nadzemných podlaží: 3
- Kompletná rekonštrukcia: 2013 - 2016
- Stavebný materiál: tehla
- Zateplenie: áno - minerálna vata (200mm)

Kontaktujte ma pre viac informácií a dohodnutie obhliadky: Ernest Drončovský – 0903 310 506
droncovsky@salea.sk

Vlastnosti

Status:
aktívne
Vlastníctvo:
korporácia
Úžitková plocha:
350 m2
Zastavaná plocha:
300 m2
Podlahová plocha:
350 m2
Skladová plocha:
15 m2
Stav:
úplne prerobený
Počet izieb:
9
Energetický certifikát:
žiadne
Energetická náročnosť budovy:
Klasické materiály
Typ budovy:
tehla
Typ výbavy:
kompletne vybavený
Balkón:
áno
Terasa:
áno
Sklad:
áno
Rok poslednej rekonštrukcie:
2016
Celková plocha:
350 m2
Plocha balkóna:
6 m2
Počet balkónov:
4
Terasa plocha:
40 m2
Počet terás:
1
Inžinierske siete:
áno
Voda:
áno
Elektrika:
áno
Plyn:
áno
Kanalizácia:
áno
Voda - na pozemku:
áno
Elektrika - na pozemku:
áno
Elektrika - na pozemku - 230 V:
áno
Elektrika - na pozemku - 380 V:
áno
Plyn - na pozemku:
áno
Kanalizácia - na pozemku - kanalizácia:
áno
Vykurovanie - podlahové:
áno
Internet:
áno
Satelit:
áno
Káblová TV:
áno
Status:
aktívne
Vlastníctvo:
korporácia
Úžitková plocha:
350 m2
Zastavaná plocha:
300 m2
Podlahová plocha:
350 m2
Skladová plocha:
15 m2
Stav:
úplne prerobený
Počet izieb:
9
Energetický certifikát:
žiadne
Energetická náročnosť budovy:
Klasické materiály
Typ budovy:
tehla
Typ výbavy:
kompletne vybavený
Balkón:
áno
Terasa:
áno
Sklad:
áno
Rok poslednej rekonštrukcie:
2016
Celková plocha:
350 m2
Plocha balkóna:
6 m2
Počet balkónov:
4
Terasa plocha:
40 m2
Počet terás:
1
Inžinierske siete:
áno
Voda:
áno
Elektrika:
áno
Plyn:
áno
Kanalizácia:
áno
Voda - na pozemku:
áno
Elektrika - na pozemku:
áno
Elektrika - na pozemku - 230 V:
áno
Elektrika - na pozemku - 380 V:
áno
Plyn - na pozemku:
áno
Kanalizácia - na pozemku - kanalizácia:
áno
Vykurovanie - podlahové:
áno
Internet:
áno
Satelit:
áno
Káblová TV:
áno

Virtuálna prehliadka

Informatívna úverová kalkulačka

Pozrieť na mape

Radi Vám poradíme

Podobné nehnuteľnosti