Používame cookies

Súbory cookie a ďalšie technológie sledovania používame na zlepšenie vášho zážitku z prehliadania našich webových stránok, na to, aby sme vám zobrazovali prispôsobený obsah a cielené reklamy, na analýzu návštevnosti našich webových stránok a na pochopenie toho, odkiaľ naši návštevníci prichádzajú. Viac info

 

CHATA UPROSTRED LESA, POZEMOK 1782m2, ČADCA - BREHY

Ulica: Brehy
Obec: Čadca
Okres: Čadca
Kraj: Žilinský kraj
Druh: Domy
Typ: Predaj
Typ domu: Chata
Iné:
109 990 €
V cene právny servis a hypotekárne poradenstvo.

Popis nehnuteľnosti

Ak hľadáte chatu, kde vás ráno zobudí len šum lesa a večer si sadnete na balkón s výhľadom do ticha, táto chata v Čadci – časť Brehy je presne ono. Je to skutočná samota uprostred lesa, bez susedov, bez ruchu. Len vy, rodina, priatelia… a príroda všade navôkol.

Pozemok má 1782 m². Priamo okolo chaty je približne 700 m² oplotených – bezpečný priestor pre deti, psa aj letné posedenia. Zvyšok tvorí vlastný priľahlý les, ktorý dotvára atmosféru a súkromie. Na pozemku stojí aj drevená garáž s drevárňou (41 m²) – miesto pre auto, na drevo, náradie, štvorkolku či bicykle.

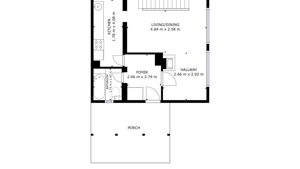
Chata je poschodová a poctivo pripravená na pohodový pobyt aj celoročné bývanie. Na prízemí je obývačka s krbom, kuchyňa, chodba a kúpeľňa s vaňou spojená s WC. Na poschodí sú tri izby (2 samostatné + 1 prechodná) a balkón s krásnym výhľadom. V suteréne je veľká spoločenská miestnosť – ideálna na večerné posedenia s rodinou či priateľmi. Bez problémov tu prespí 8 ľudí – každý má svoje miesto a komfort. Mesačné náklady iba 30 Eur.

Prístupová cesta je pre autá s pohonom 4×4 – z asfaltovej cesty je približne 7 minút po nespevnenom povrchu. Vďaka tomu si tu udržíš to, kvôli čomu do prírody chodíme: pokoj, súkromie a čisté prostredie. Chata má všetko, čo človek potrebuje – a najmä atmosféru, v ktorej sa rýchlo cítite príjemne.

Nekupujete len chatu s garážou a drevárňou. Kupujete si ticho, les, vôňu dreva, večery pri ohni a miesto, kam sa budete tešiť každý jeden víkend. A ak máte dobrodružnú povahu, môže to byť pokojne aj váš celoročný domov.

Technicky:
- Rok výstavby: 1970
- Zastavaná plocha: 74 m2 
- Podlahová plocha: 94 m2
- Prestrešená terasa: 17 m2
- Balkón: 5 m2
- Drevená garáž s drevárňou: 41 m2
- Veľkosť pozemku: 1782 m2 z toho približne 700 m² oplotených – bezpečný priestor pre deti, psa aj letné posedenia. Zvyšok tvorí vlastný priľahlý les, ktorý dotvára atmosféru a súkromie.
- Elektrika: áno – 230 V / 400 V
- Vykurovanie: krb s krbovou vložkou na prízemí + teplovzdušné prieduchy na poschodie, pec v spoločenskej miestnosti
- Komín: vyvložkovaný s každoročnou revíziou
- Voda dovedená do chaty: samospádom so zadržiavacej nádrže
- Ohrev vody: elektrický bojler
- Odpad: septik s trativodom
- V kuchyni plynový sporák na 10 kg bombu
- Alarm: áno
- Satelitná TV - Skylink
- Internet - dostupná 5G sieť na telefóne
- Počet podlaží: 3 – suterén - spoločenská miestnosť, prízemie - denná časť, poschodie - nočná časť
- Zateplenie: áno - chata: 5cm polystyrén, strop: 20cm vata
- Strešná krytina: plech
- Okná: na prízemí klasické drevené okná, na poschodí platové okná
- Stav objektu: veľmi dobrý
- Mesačné náklady: iba 30 Eur

Chceš sa prísť pozrieť?

Kontakt:
tel.: 0903 310 506
e-mail: droncovsky@salea.sk

Vlastnosti

Status:
aktívne
Vlastníctvo:
osobné
Plocha pozemku:
1782 m2
Typ zeme:
terasovitá
Teritórium:
Extravilán
Úžitková plocha:
115 m2
Zastavaná plocha:
74 m2
Podlahová plocha:
94 m2
Stav:
čiastočne prerobený
Počet izieb:
4
Energetický certifikát:
žiadne
Energetická náročnosť budovy:
Klasické materiály
Typ budovy:
zmiešané
Typ výbavy:
čiastočne vybavený
Balkón:
áno
Terasa:
áno
Garáž:
áno
Sklad:
áno
Celková plocha:
115 m2
Plocha balkóna:
5 m2
Počet balkónov:
1
Terasa plocha:
17 m2
Počet terás:
1
Počet garáží:
1
Plocha garáže:
41 m2
Orientácia:
juh
Inžinierske siete:
áno
Voda:
áno
Elektrika:
áno
Voda - blízko pozemku - vodný zdroj:
áno
Elektrika - na pozemku:
áno
Elektrika - na pozemku - 230 V:
áno
Elektrika - na pozemku - 380 V:
áno
Vykurovanie - lokálne:
áno
Satelit:
áno
Status:
aktívne
Vlastníctvo:
osobné
Plocha pozemku:
1782 m2
Typ zeme:
terasovitá
Teritórium:
Extravilán
Úžitková plocha:
115 m2
Zastavaná plocha:
74 m2
Podlahová plocha:
94 m2
Stav:
čiastočne prerobený
Počet izieb:
4
Energetický certifikát:
žiadne
Energetická náročnosť budovy:
Klasické materiály
Typ budovy:
zmiešané
Typ výbavy:
čiastočne vybavený
Balkón:
áno
Terasa:
áno
Garáž:
áno
Sklad:
áno
Celková plocha:
115 m2
Plocha balkóna:
5 m2
Počet balkónov:
1
Terasa plocha:
17 m2
Počet terás:
1
Počet garáží:
1
Plocha garáže:
41 m2
Orientácia:
juh
Inžinierske siete:
áno
Voda:
áno
Elektrika:
áno
Voda - blízko pozemku - vodný zdroj:
áno
Elektrika - na pozemku:
áno
Elektrika - na pozemku - 230 V:
áno
Elektrika - na pozemku - 380 V:
áno
Vykurovanie - lokálne:
áno
Satelit:
áno

Virtuálna prehliadka

Informatívna úverová kalkulačka

Pozrieť na mape

Radi Vám poradíme

Podobné nehnuteľnosti